Réf. 86358828
4 pièces
70 m²
1 800 € / Mois
NOUVEAUTÉ !
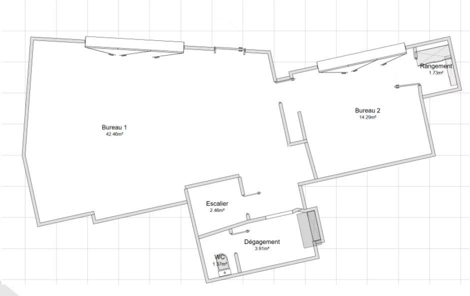
En hyper-centre de LOUVIERS, sur une place passante et avec une très grande visibilité, local de 70 m2 avec grandes vitrines, et disposant de caves en sous-sol permettant le stockage.
Il est composé d'un grande pièce d'accueil de + de 40 m2, un bureau avec une pièce pour archives, un coin cuisine, et un wc.
Taxe foncière de 1260 € / an.
DISPONIBLE DE SUITE !
- Loyer : 1800 € / mois
- Dépôt de garantie : 1800 € (1 loyer HC)
- Honoraires à la charge du preneur : 5184 € TTC / 4320 € HT dont 210 € TTC pour l'état des lieux
Pas d'informations disponibles
Pas d'informations disponibles
Pas d'informations disponibles
Pas d'informations disponibles

Ce site est protégé par reCAPTCHA et les règles de confidentialité et les conditions d'utilisation de Google s'appliquent.